READ THIS IMPORTANT ANNOUNCEMENT
ABOUT FUTURE OF NO OUTAGE.COM LLC

Page last updated Oct 20, 2021 @ 10:10pm

Custom Junction Boxes

Weigman-RHCoutside.jpg (9011 bytes) Wiegmann-RHCdims.gif (22340 bytes) JBterminations.gif (14668 bytes) JunctionBox-insideTB.jpg (38125 bytes) JBsign.jpg (24638 bytes)
outside view dimensional details example termination configurations inside view with power terminal blocks with warning sign applied
Click thumbnail images above to enlarge

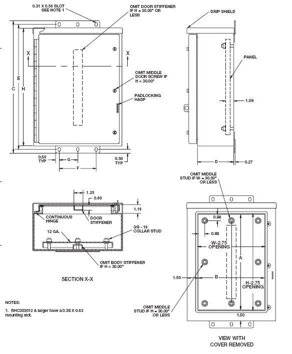
Junction Box
NEMA 3R Raintite
6" x 8" up to 24" x 36"
with power terminal blocks

 

Junction box for terminating and connecting larger generators.  Provides protection in outdoor installations against rain, sleet, and snow, or indoors against dripping water.

Bodies and doors fabricated from 14 gauge carbon steel.  Hinge is made from galvanized steel with a stainless steel pin.  For maximum protection against weather no knockouts are provided.  Removable inner panel mounts on collar studs.  External mounting plates, top and bottom of enclosure.  Hasp and staple for padlocking.  Grounding provisions provided.  Finished with ANSI 61 gray polyester power.  Removable inner panel finished white.

Power terminal blocks are 600V 90C rated and are approved for use with copper and aluminum conductors.  Individual poles snap together and have high impact extra strong bases.  Terminal blocks shipped loose for field mounting along with self adhesive-backed warning sign.

When selecting the size enclosure refer to the recommended cable bending clearances in the following tables.  For more details including exceptions and cases where space can be reduced refer to the National Electrical Code section 312.6.

Table 312.6(A) Minimum Wire-Bending Space
at Terminals and Minimum Width of Wiring Gutters

Wire does NOT enter or leave through opposite wall.

Wire Size
(AWG or MCM)
1 Wire per Terminal 2 Wires per Terminal 3 Wires per Terminal 4 Wires per Terminal 5 Wires per Terminal
8-6
4-3
2

1
1/0-2/0
3/0-4/0

250
300-350
400-500
1.5
2
2.5

3
3.5
4

4.5
5
6
--
--
--

--
5
6

6
8
8
--
--
--

--
7
8

8
10
10
--
--
--

--
--
--

10
12
12
--
--
--

--
--
--

--
--
14

 

Table 312.6(B) Minimum Wire-Bending Space at Terminals
Wire DOES enter or leave through opposite wall.

Wire Size
(AWG or MCM)
1 Wire per Terminal 2 Wires per Terminal 3 Wires per Terminal 4 or More Wires per Terminal
8
6
4

3
2
1

1/0
2/0
3/0

4/0
250
300

350
400
500
1.5
2
3

3
3.5
4.5

5.5
6
6.5

7
8.5
10

12
13
14
--
--
--

--
--
--

5.5
6
6.5

7.5
8.5
10

12
13
14
--
--
--

--
--
--

7
7.5
8

8.5
9
11

13
14
15
--
--
--

--
--
--

--
--
--

--
10
12

14
15
16

Determine required enclosure size before ordering.  We recommend printing this image and marking the A, B, W, L dimensions on the applicable diagram.  A and B dimensions can be read from the above tables.  W and L terminal block dimensions are listed in the dropdown menus below.

 


This item no longer sold. See Announcement at top of page.

Note that the price and weight shown immediately above will be adjusted by shopping cart after your menu selections are made.

Other box sizes and terminal block combinations are available including distribution blocks for multiple load cables.  Contact NoOutage.com if you do not see what you need.

 

Are YOU ready for the next power outage?

 1 Videos
 2 Outage Archives
 3 Utility Industry
 4 Why You Need Backup
 5 Personal Stories
 6 NoOutage Configurations
 7 Safety
 8 Sizing for Your Needs
 9 Voltage Drop Calculator
10 Test Reports
11 Placing Order
12 Equipment Leasing
13 Books & Videos  
14 Financing
15 Frequently Asked
16 Future Technologies
17 Electricity Glossary
18 Help with Plug Types
19 Who We Are
20 Why Buy Here
21 Our Customers
22 Pick a Contractor
23 Privacy Promise
24 Safe Shopping Guarantee
25 Terms & Conditions
26 What's New
27 Contacting Us
28 Parts Lookup
29 Parts & Service
30 Made in USA
31 Links

We welcome your feedback or questions.  Click here to contact us.
See our Terms & Conditions before using information or ordering from this web site.
Copyright © 1999-2025 NoOutage.com LLC. A Virginia LLC. All rights reserved.